








Umbau Pfarrhaus zu MFH
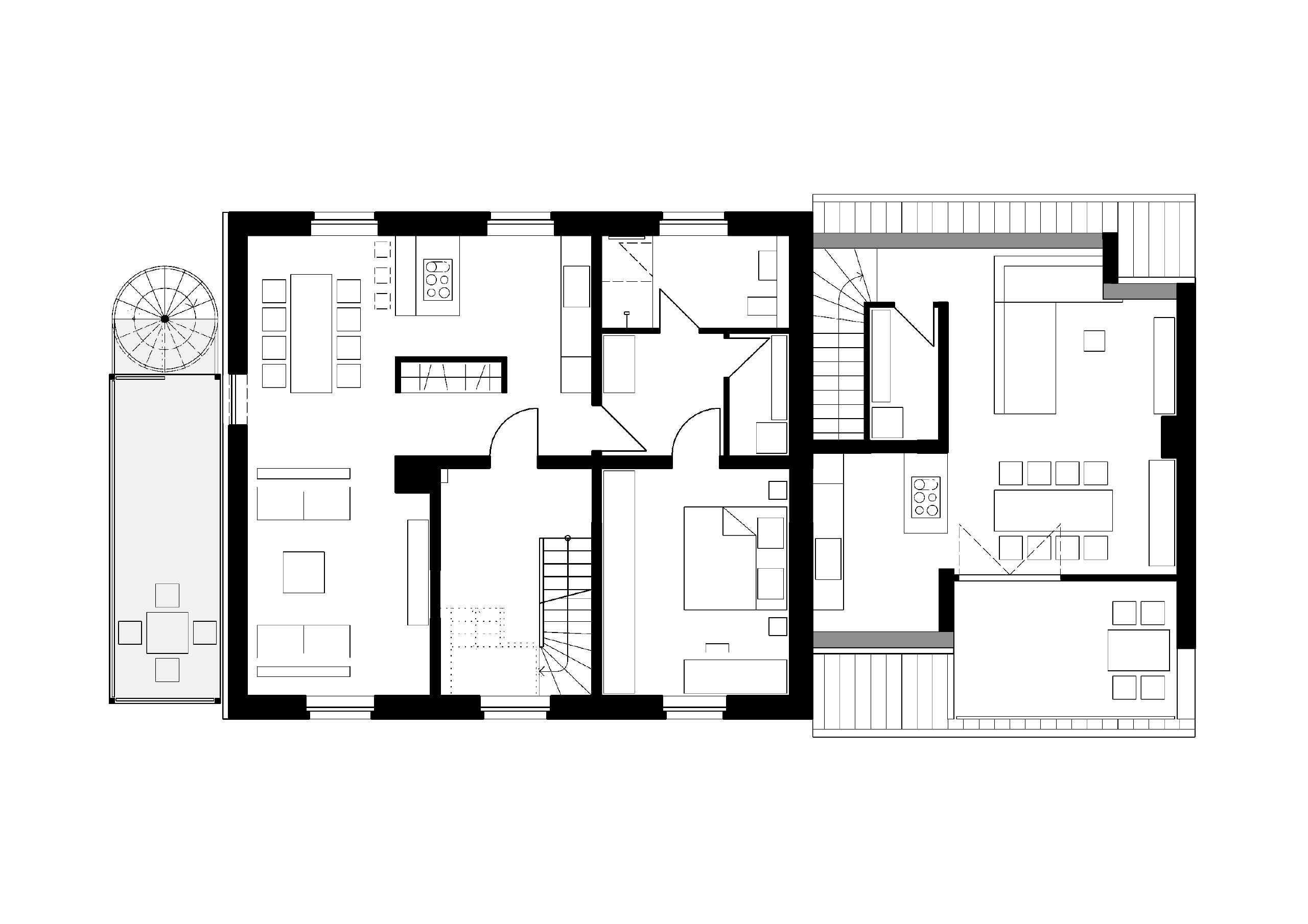
Im Ortskern von Kückhoven, direkt neben der Kirche, liegt das ehemalige Pfarrhaus. Auf Wunsch des Investors wurde es zu einem 4 Familienhaus umgebaut. Durch den Umbau sind hochwertige Wohnungen mit jeweiligen Freisitzen in Form von Balkonen und einer Dachterrasse entstanden.
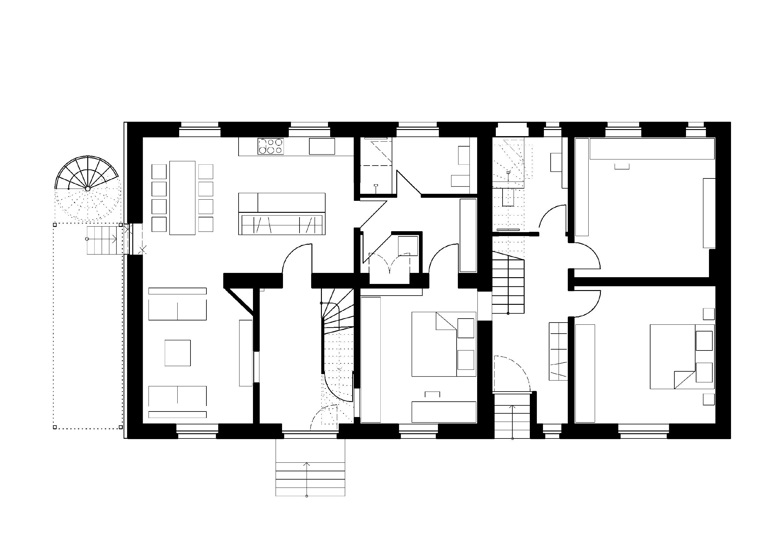
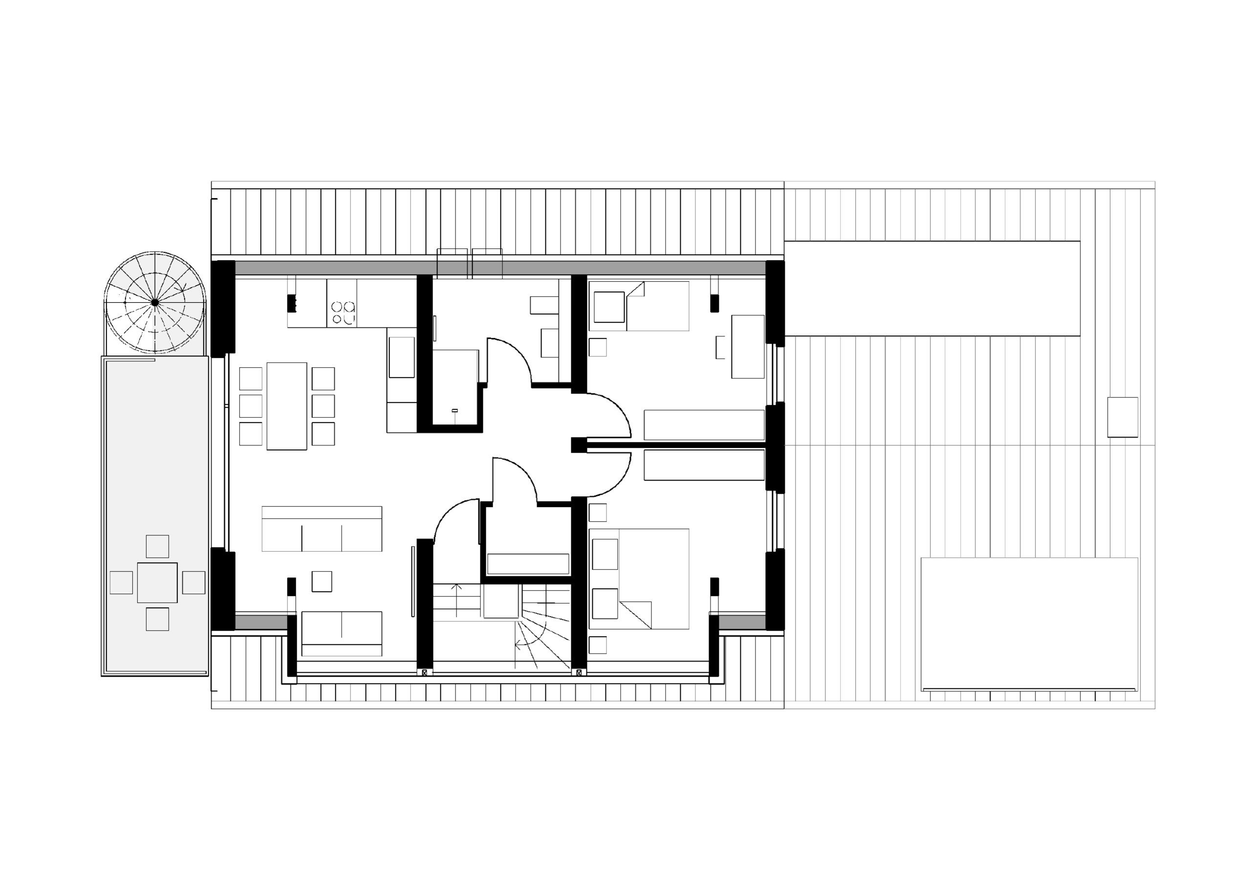
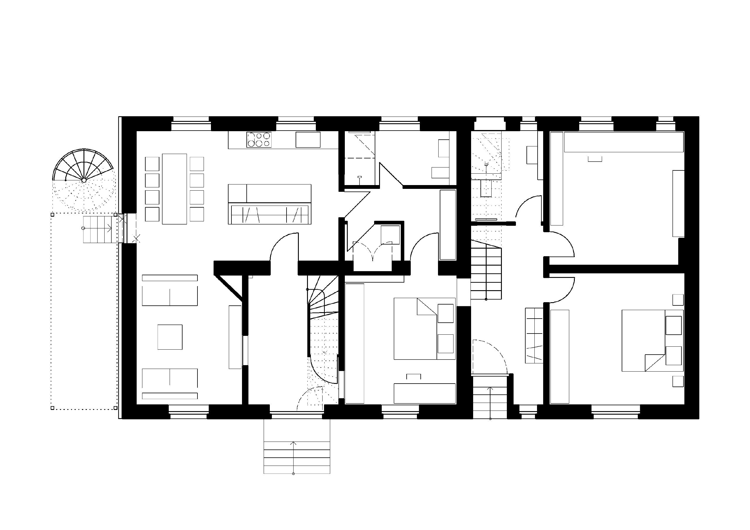
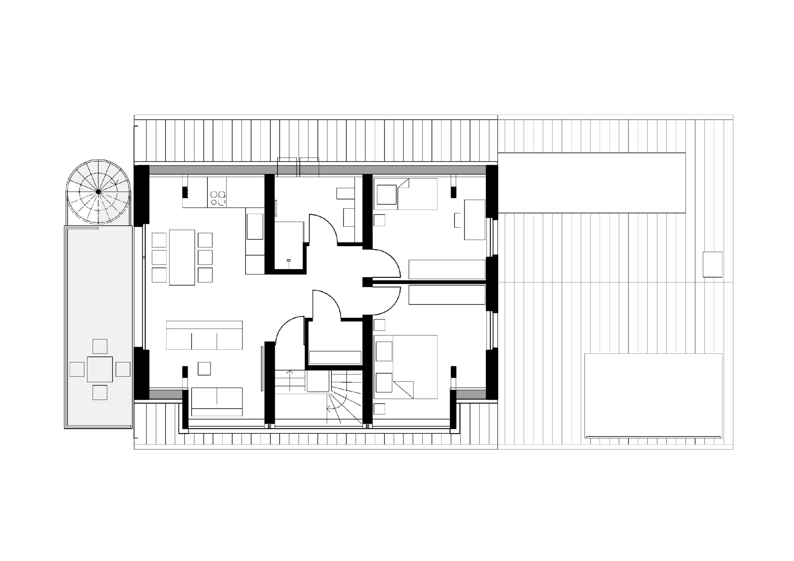
Im 3-geschossigen Haupthaus befindet sich je eine Wohnung pro Geschoss. Das 2-geschossige Nebengebäude beinhaltet eine Maisonette Wohnung über beide Geschosse.
Das ehemalige Pfarrhaus ist denkmalgeschützt. Daher mussten die bestehende Architektur und die äußere Materialität gewahrt werden. Die Energieeinsparverordnung wurde daher durch eine hochwertige Innendämmung und die Erneuerung beider Dachstühle erfüllt.
Die neu geplante Balkonanlage mit angeschlossener Spindeltreppe dient dabei gemäß des Brandschutzkonzeptes als 2. Rettungsweg, weil eine ausreichende Zugänglichkeit der Feuerwehr auf das Grundstück nicht gegeben ist, da das Grundstück komplett durch alte Stadtmauern eingefriedet ist.
Der Innenausbau ist mit viel Holz und weißen Wänden natürlich und schlicht gehalten worden.
Bauherr: Privatperson als Investment
