Zum Hauptinhalt springen

Aktuelle Projekte

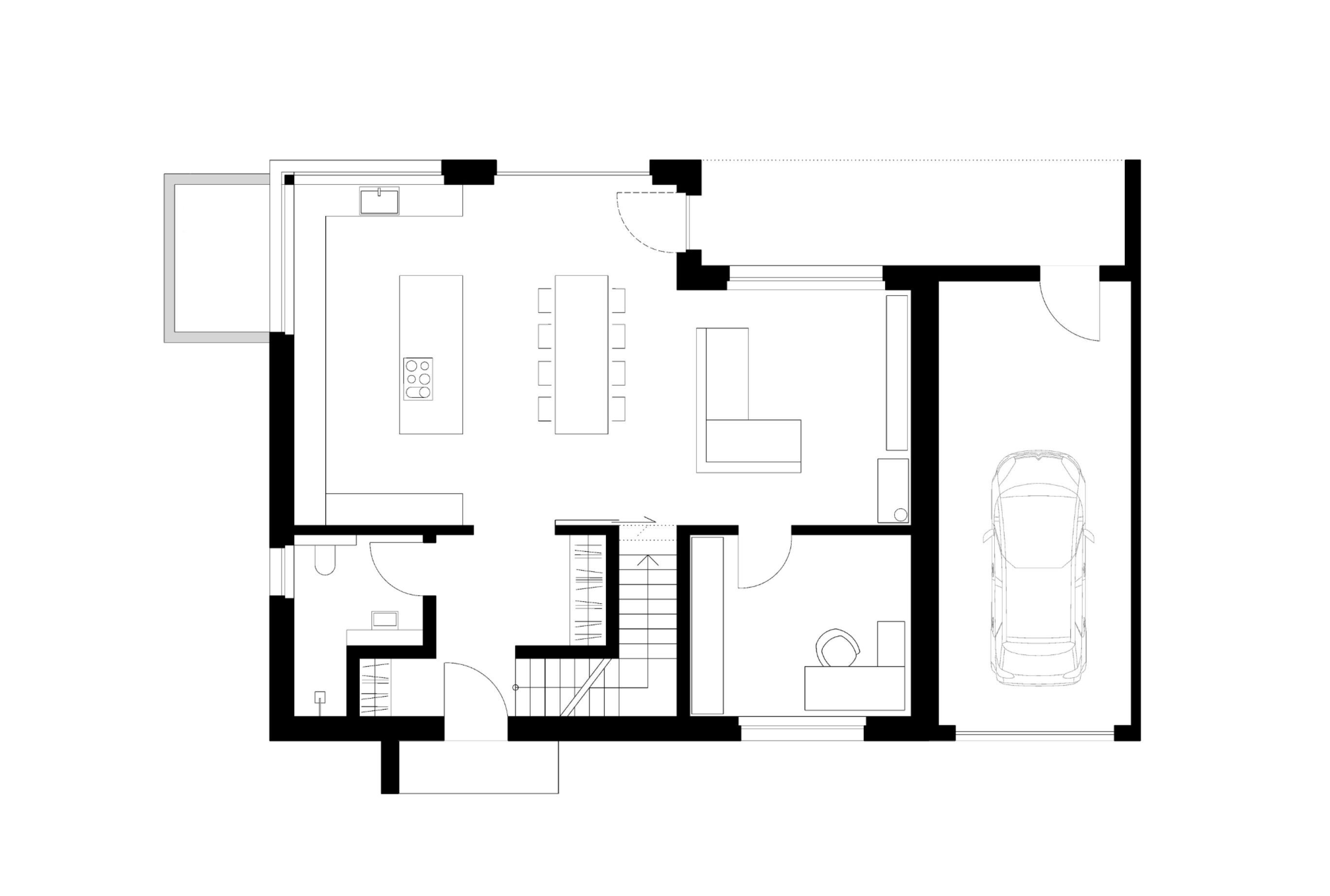
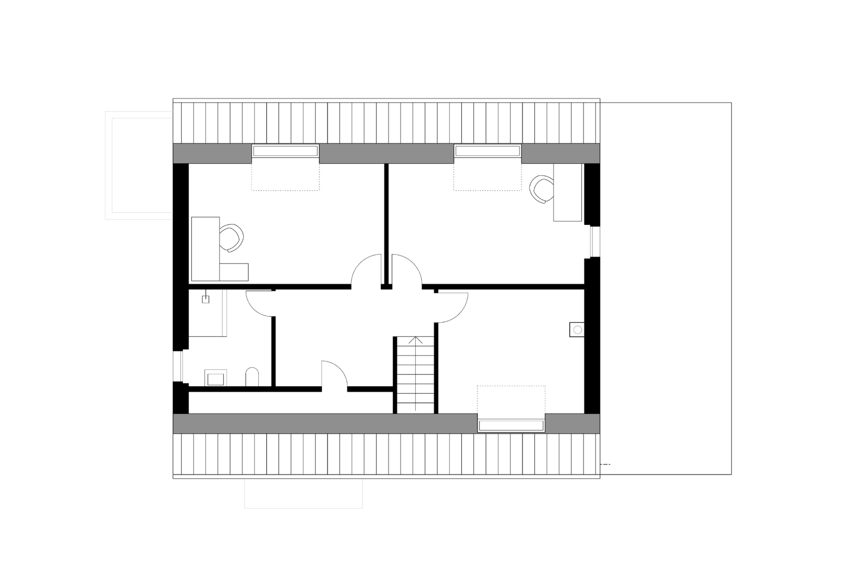
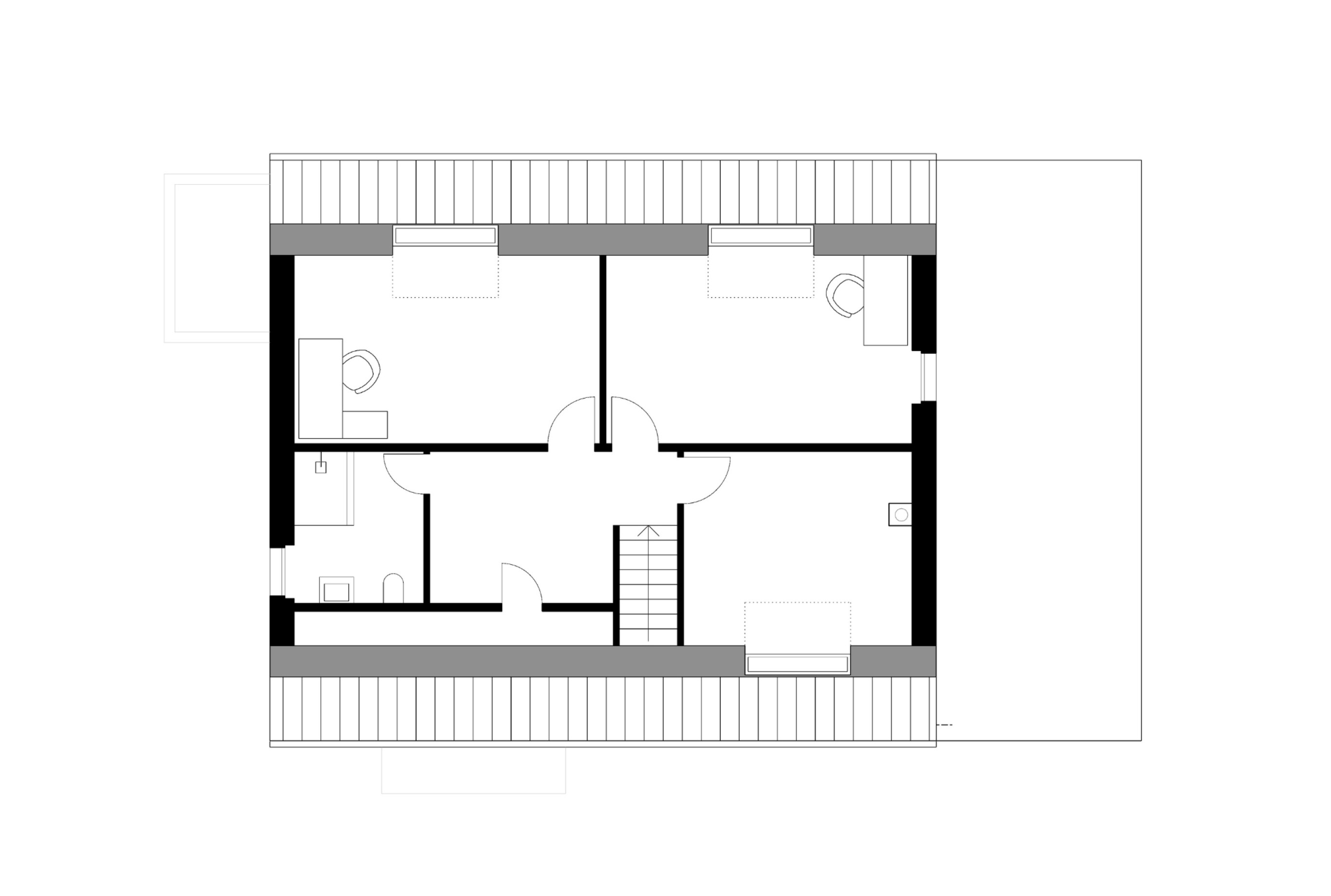
Neubau Einfamilienhaus, Wegberg
Im Bau | Fertigstellung 07/2026 | Leistungsumfang LPH 1-8

    Erweiterung Einfamilienhaus, Erkelenz
    Im Bau | Fertigstellung 09/2025 | Leistungsumfang LPH 1-6

      Neubau Ärztehaus, Erkelenz
      Im Bau | Fertigstellung 09/2025 | Leistungsumfang LPH 5-8
        Sanierung Möllenkotter Quartier, Schwelm
        Im Bau | Fertigstellung 12/2025 | Leistungsumfang LPH 5
          Neubau EFH, Brüggen
          Im Bau | Leistungsumfang LPH 1-4
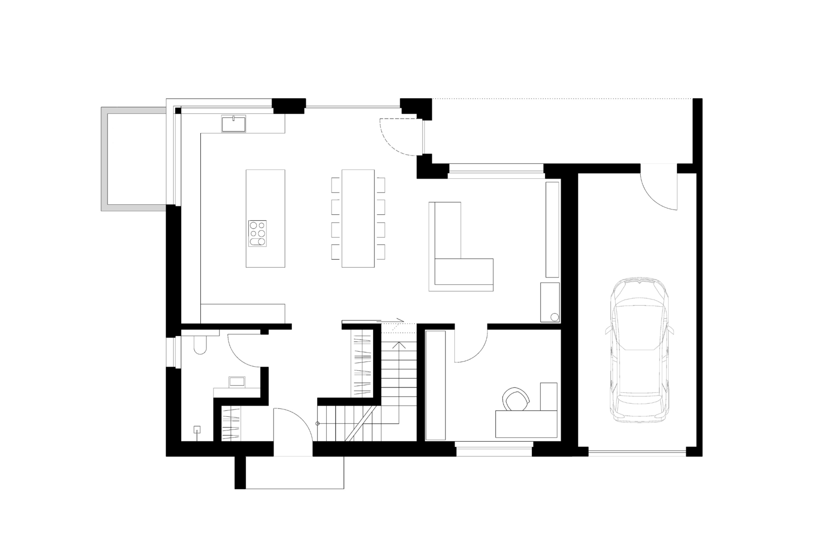
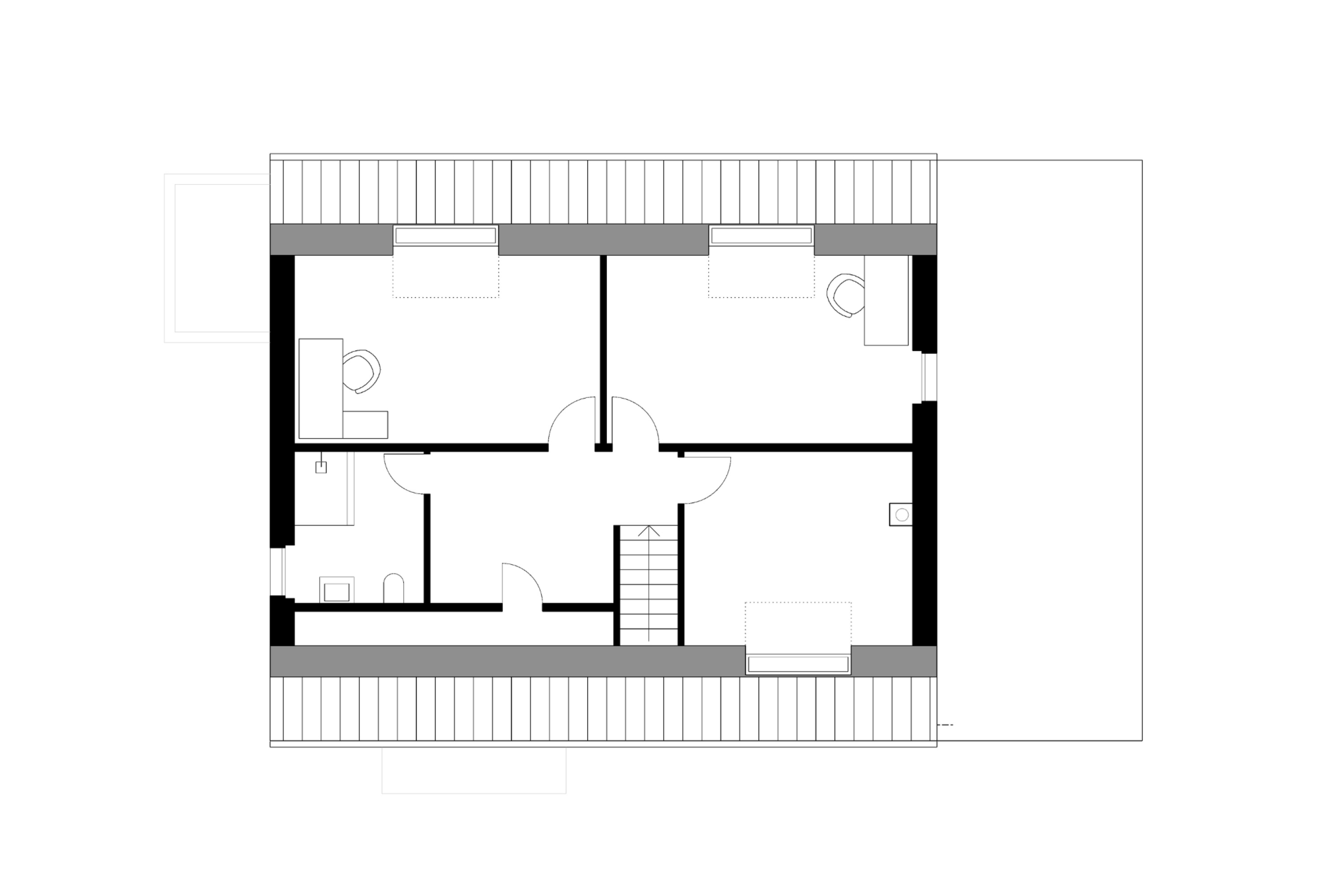
            Neubau EFH, Mönchengladbach-Dorthausen
            Im Bau | Fertigstellung 03/2026 | Leistungsumfang LPH 1-8
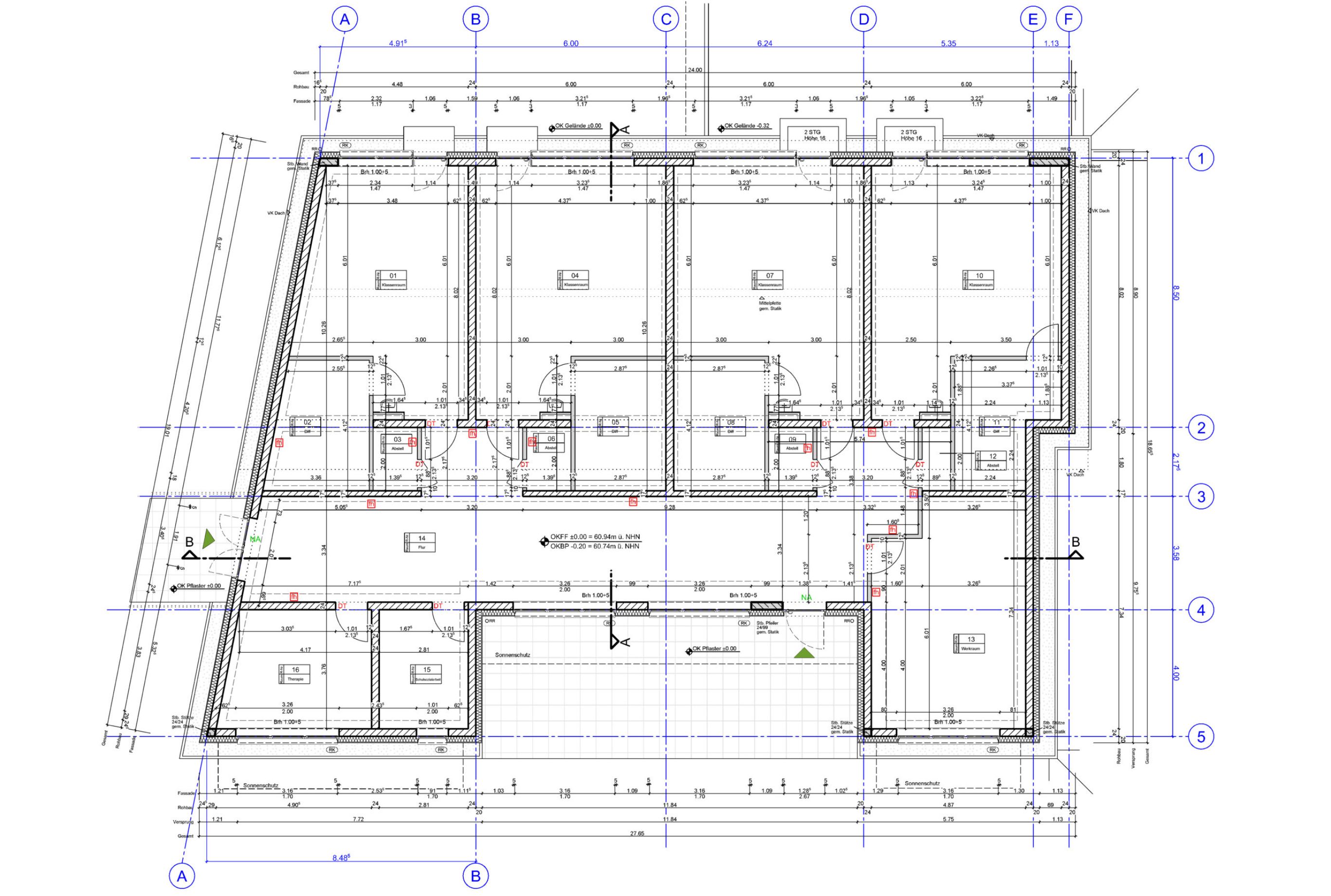
              Erweiterung Karl-Barthold-Schule, Mönchengladbach – Schelsen
              Im Bau | Fertigstellung 06/2026 | Leistungsumfang LPH 5-8

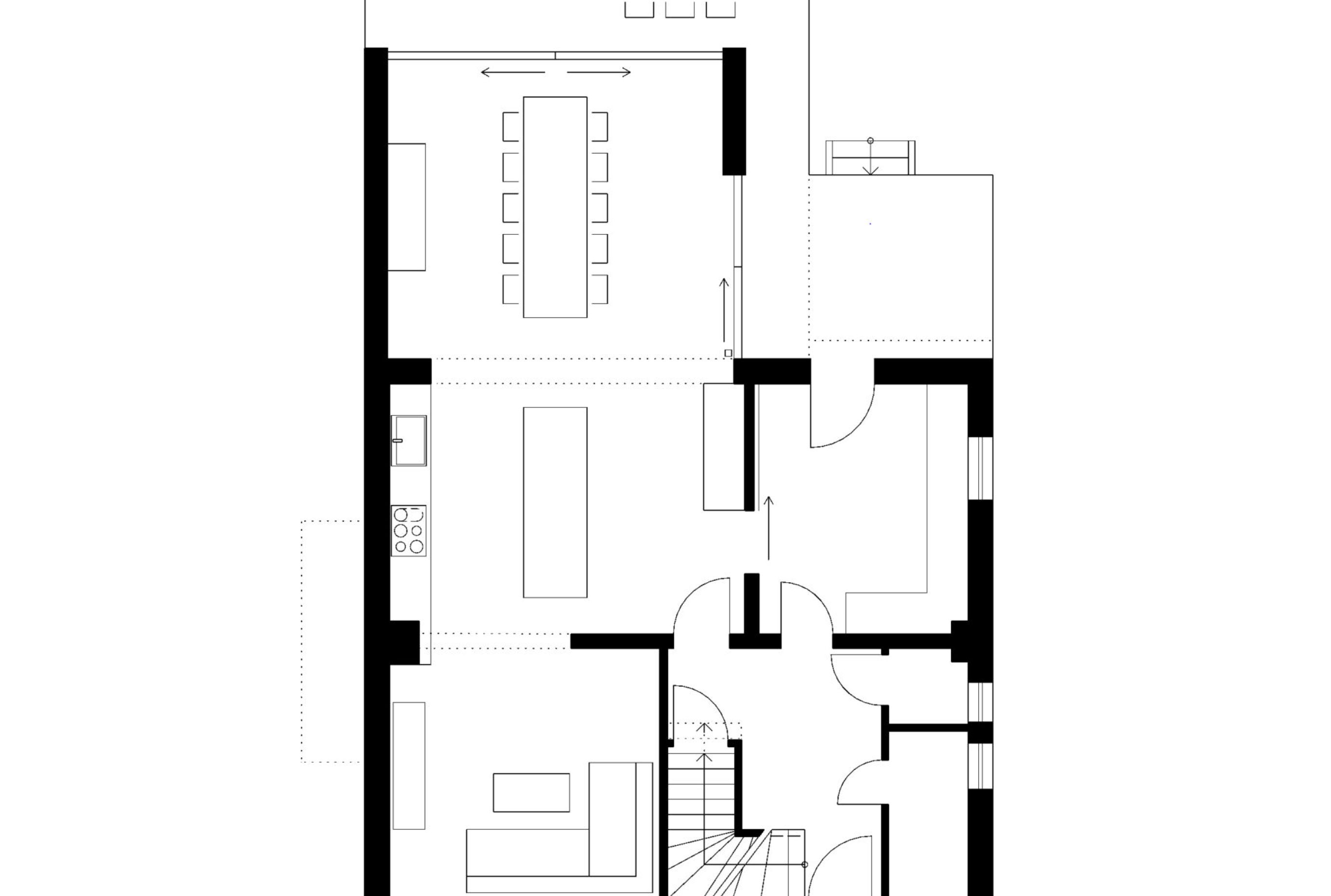
                Umbau und Erweiterung EFH, Mönchengladbach-Hardt
                Im Bau | voraussichtliche Fertigstellung 12/2025 | Leistungsumfang LPH 1-5

                  Neubau 5FH, Erkelenz-Golkrath
                  Im Bau 2025 | Leistungsumfang LPH 1-8 

                    Revitalisierung und Erweiterung Quartier Quimperlestraße, Geilenkirchen
                    In Planung | voraussichtlicher Baubeginn 2027

                      Innenausbau Restaurant KIND, Lingen
                      In Planung | voraussichtlicher Baubeginn 11/2025 | Leistungsumfang LPH 8

                        Neubau EFH, Köln-Hürth
                        In Planung | voraussichtlicher Baubeginn 03/2026 | Leistungsumfang LPH 1-5

                          Umbau und Erweiterung 2FH, Köln
                          In Planung | Leistungsumfang LPH 1-4

                            Neubau EFH, Wegberg-Rath Anhoven
                            In Planung | voraussichtlicher Baubeginn 03/2026 | Leistungsumfang LPH 1-8