






Umbau DHH
Der Bauherr wünschte einen Umbau bzw. Erweiterung sowie eine vollständige Sanierung unter Beachtung energetischer Aspekte der in die Jahre gekommene Doppelhaushälfte.
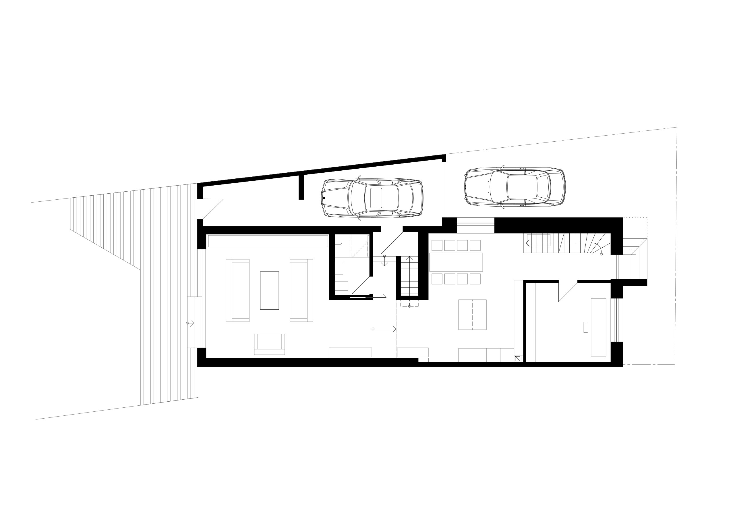
Am Ende sind lediglich die Außenwände erhalten geblieben. Die alten Holzdecken sind durch Betondecken ersetzt worden. Daher wirkt die Doppelhaushälfte heute eher wie ein Neubau.
Das komplett offen gestaltete Treppenhaus bietet beim Betreten des Hauses einen Blick bis 9 Meter unter die Firstpfette. Die Offenheit wird durch die statisch aufwendig hergerichtete Glasfuge auf der Giebelseite betont. Die rückseitig geplante Erweiterung ist mit Stufen nach unten konzipiert und verleiht dem Wohnbereich hohe Decken und einen hohen Lichteinfall.
Als Adaption zum weißen Klinker der anderen bestehenden Doppelhaushälfte, wurde die Fassade weiß verputzt. Gestalterisch wurde die Gebäudeecke mit Holz akzentuiert. Die Außenentwässerung, wie Rinnen und Fallrohre, sind nicht sichtbar.
Die markante rote Eingangsüberdachung verleiht dem Haus Farbe und Freundlichkeit. Heute ist die Doppelhaushälfte ein Hingucker und wertet die Straße auf.
Bauherr: Privatperson als Investment

