Zum Hauptinhalt springen

    Wiederherstellung EFH

    Mönchengladbach-Rheindahlen, Fertigstellung 2020

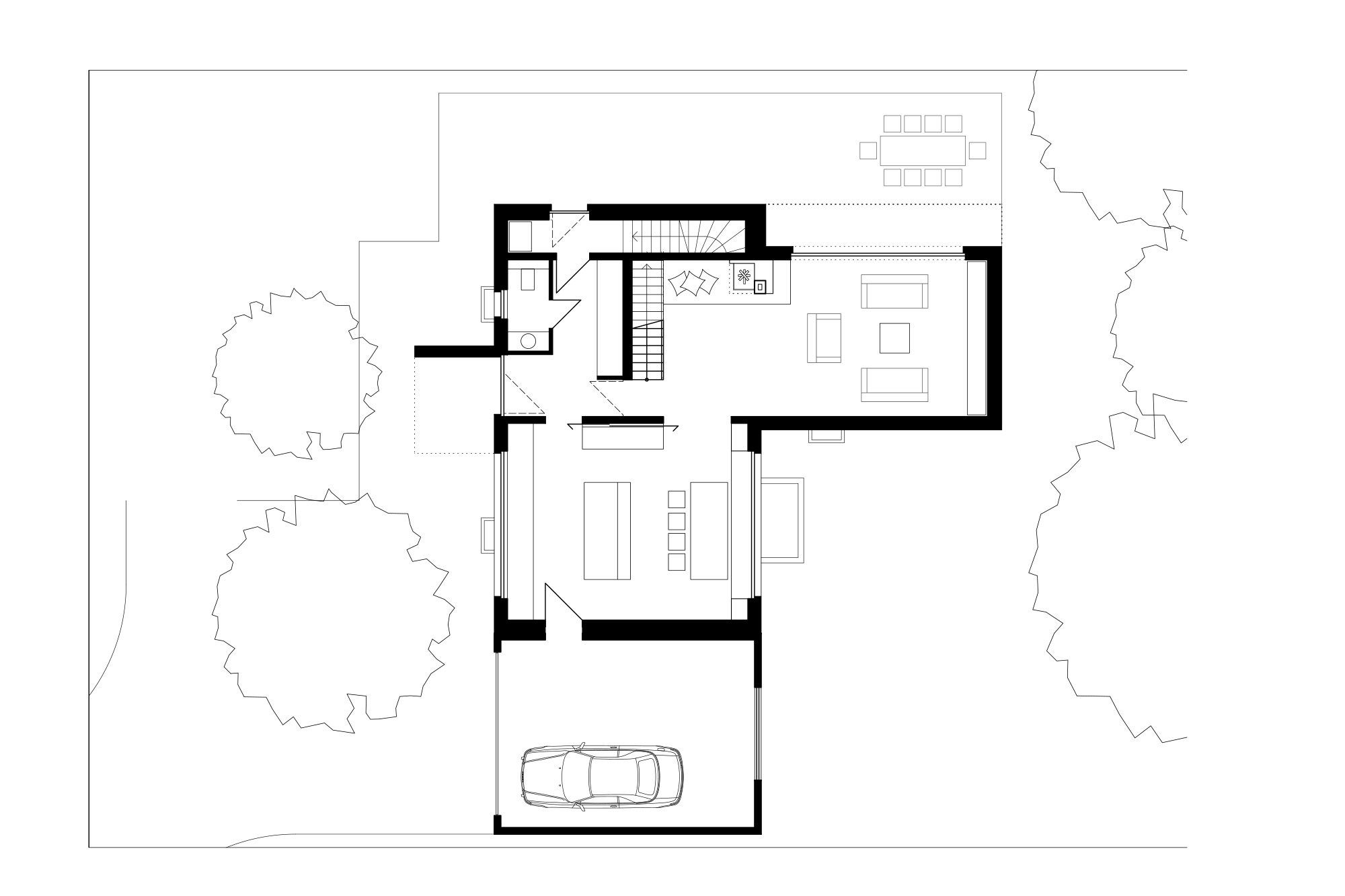
    Das bestehende Einfamilienhaus mit ca. 3000qm Grundstücksfläche wurde aufgrund einer später entstandenen straßenorientierten Bebauung eines Behindertenwohnheims in 2. Reihe geschoben. Ein Neubau bzw. Ersatzbau wäre für den Eigentümer planungsrechtlich nicht mehr zulässig gewesen, da in 2. Reihe gelegen. Daher wurde das Vorhaben mit Verweis auf den Bestandsschutz als Umbau bzw. Erweiterung deklariert.

    Während der Umbauphase wurde jedoch festgestellt, dass die vorherige Bausubstanz nicht mehr verwertbar war. In Abstimmung mit der Bauaufsicht wurde daher das Kellergeschoss und der oberirdische Neubau unter gestalterischer Adaption der vorherigen Bausubstanz wiederhergestellt. Die vermeintliche alte Bausubstanz wurde durch einen neuen Klinker aufgewertet und akzentuiert. Die additiven Baukörper erhielten eine Fassade aus Putz.

    Von Außen ist ein verspieltes und modernes Einfamilienhaus im kubistischen Stil mit klaren, geraden Kanten entstanden.

    Der Innenbereich besticht mit einer schlichten Mischung aus Sichtbeton, Holz und viel Weiß. Farbakzente entstehen durch Möbel und passender Kunst.

    Bauherr: junge Familie mit 3 kleinen Kindern